Leningrady na Pomorzu i w byłym Związku Radzieckim
W najnowszym, 9 numerze magazynu miłośników Szczecina "Szczeciner" krótki esej mojego autorstwa o radzieckiej myśli architektonicznej, którą próbowano zaszczepić na Pomorzu.
"Leningrady", bloki mieszkalne z wielkiej płyty, to spuścizna po czasach braterstwa narodów radzieckich i polskiego. Sojusz skończył się na 30 budynku, gdyż Polacy budowali taniej i efektywniej. Nawet w wasalnej rzeczywistości nie widzieli potrzeby sponsorowania rosyjskiego przemysłu. Odłóżmy jednak na bok kontekst geopolityczny. "Leningrady" były całkiem nowoczesnym projektem budowlanym. O tym w "Szczecinerze".
Wielka płyta jest jednym z najbardziej charakterystycznych symboli minionego, socjalistycznego ustroju. Stanowi frapującą kompilację odważnych wizji i postępu technicznego z nietrafionymi rozwiązaniami i niedbalstwem wykonaniem.
Beton trwale przeobraził polski krajobraz, wypełniając przestrzeń miast, miasteczek a nawet wiosek. Wybudowane na Pomorzu „leningrady” stanowią klasykę tego gatunku.
Znane nam z krajobrazu Szczecina, Polic, Świnoujścia i Gdańska bloki stanowią jedną z wersji serii budynków, której nadano nazwę 1-ЛГ-600. Seria ta stanowiła trzecią generację zabudowy wielkopłytowej, po tzw. „chruszczowkach” i „breżniewkach”. Była odpowiedzią na rezolucję Komitetu Centralnego ZSRR z 1969 r. nawołującą do „podniesienia poziomu artystycznego, estetycznego i operacyjnego nowych mieszkań”, stanowiła też konsekwencję wniosków wyciągniętych z niedoskonałości rozwiązań poprzednich generacji.
![]() |
| Surowe, "gołe" leningrady bez infrastruktury osiedlowej. Lata 80. XX w. Ze zbiorów Galerii Historycznej w MOK. |
Wykonanie projektu zlecono leningradzkiemu Instytutowi Wzornictwa Eksperymentalnego LenZNIIEP (ЛенЗНИИЭП), zaś producentem elementów składowych bloków został działający w tym mieście Kombinat Budownictwa Mieszkaniowego nr 3 (ДСК-3).
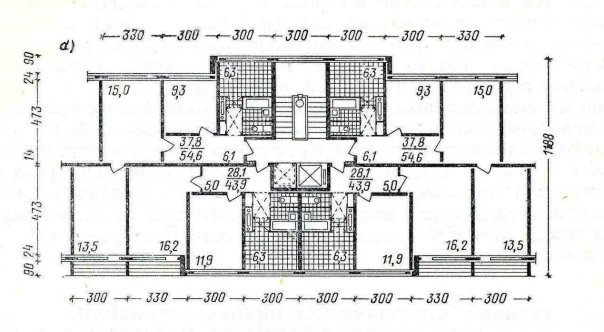
Zasadniczą cechą różniącą nową serię od poprzednich było stworzenie szerokiej gamy odmian, pozwalającej swobodnie kształtować przestrzeń dowolnymi układami budynków i oferować zasoby lokalowe adekwatne do rzeczywistych potrzeb osiedlanej ludności. W katalogu serii zawierały się 5-kondygnacyjne budynki bez wind do niskiej zabudowy na przedmieściach, oraz 9-, 12- i 15-kondygnacyjne z windami. Budynki mogły sobie liczyć sobie 1, 5, 7 lub 9 klatek. Mieściły się w nich lokale 1-, 2-, 3-, 4- i 5-pokojowe.
![]() |
| Rzut na rozkład pomieszczeń kolejnej wersji 1-ЛГ-600. W tym przypadku balkony ("loggie") mamy po obu stronach budynku. |
Dodatkowe pole do popisu dawała możliwość komponowania bardziej zróżnicowanych układów budynków, od chętnie stosowanych wówczas orientacji „wschód-zachód” i „północ-południe”. Układy kątowe, po łuku, w kształcie litery T czy „koniczynki” z dobudowanymi pawilonami handlowymi miały nadać nowym kwartałom mieszkalnym dynamiczny wygląd. Szeroki wachlarz możliwości 1-ЛГ-600 dopełniała wersja posiadająca krzywizny. Choć jej powstanie wynikało z chęci tłumienia silnego wiatru w obszarze przybrzeżnym, pozwalało przy okazji popuszczać wodze fantazji. Najbardziej ekspresyjną kompozycją wykorzystującą tę wersję jest układ 5 budynków postawiony w zachodniej części Leningradu (dzisiejszy Sankt Petersburg) – ciągnie się zygzakiem na odcinku ponad 700 metrów, a z góry wygląda jak wąż lub odwrócony znak zapytania.
Tak elastyczny system spotkał się z uznaniem decydentów - projektanci LenZNIIEPa otrzymali stosowne dyplomy i nagrody.
Sylwetka budynków serii 1-ЛГ-600 jest niezwykle charakterystyczna – ciągnące się przez całą długość wstęgi okien, dominujący na elewacji biały kolor, balkony w stylu „loggia” oraz nadbudówki na dachu nasuwały skojarzenie z okrętami pasażerskimi. To też bardzo szybko nadano im w Związku Radzieckim miano „statków” (корабль). Nazwa tym bardziej trafiona, że rozwiązania architektoniczne wnętrza przypominały jak żywo te z promów pasażerskich: małe pokoje niczym kajuty, przechodnie korytarze, brak parapetów czy wysoko położona dolna linia okien w kuchniach i niektórych pokojach. Ta ostatnia cecha, często wymieniana na liście wad konstrukcyjnych serii, miała jednak swoje całkiem racjonalne uzasadnienie. Takie pomieszczenie było bezpieczne dla dzieci, gdyż zmniejszało prawdopodobieństwo wypadnięcia z okna. Jednocześnie z racji na małe rozmiary (np. niewiele ponad 6 m kw. przestrzeni kuchennej.) pozwalało efektywnie zagospodarować przestrzeń, stawiając meble pod oknem.
![]() |
| Szkic ukazujący policki kompleks "leningradów" wykonany przez Jana Maturę bodajże na przełomie lat 80./90. (w tle najprawdopodobniej trwa budowa paropiętrowych bloków przy ul. Roweckiego. |
Kolejne niecodzienne rozwiązanie zastosowano w przypadku toalety i łazienki – jest to niezależna „klatka” o cieńszych ścianach, osadzana wewnątrz pomieszczenia. Rozwiązania te zaczerpnięte zostały najprawdopodobniej z Zachodu i tak też serię prezentowano – jako nowoczesny, światowy trend.
Niestety nie ustrzeżono się wad konstrukcyjnych, które rzutowały później na jakość wszystkich budynków serii 1-ЛГ-600. Słaba izolacja cieplna, powodowana nieszczelnością spoin między płytami, szybko wychładza budynki w razie awarii grzewczej. Płyty betonowe nie stanowią skutecznej bariery akustycznej. Poprodukcyjny proces wysychania zewnętrznych płyt z gazobetonu trwał także po montażu, co skutkowało szpecącymi wygląd elewacji, pajęczynowatymi pęknięciami. Betonowy szkielet nie pozwala na modyfikowanie przestrzeni mieszkalnej (za wyjątkiem ścianki działowej między toaletą i łazienką, która nie jest ścianą nośną), tymczasem zewnętrzną płytę z gazobetonu można już pociąć zwykłą piłą. Zaś wąskie wrota windy ograniczają jej możliwości transportowe. Trzeba tu jednak zaznaczyć, że część wad była typowa dla wszystkich obiektów z wielkiej płyty.
Smaczkiem w historii tej serii budynków jest przypadek katastrofy budowlanej, jaka wydarzyła się 27 lutego 1979 r. w Leningradzie. Zawalił się wówczas 15-piętrowy budynek w wersji 1-ЛГ600-1 o kwadratowej podstawie. Elementy składowe budynku wykonane zostały w grudniu 1978 r. podczas silnych mrozów. Montaż rozpoczął 19 stycznia a zakończył 24 lutego, także w ujemnych temperaturach otoczenia. 26 lutego nastała odwilż, która spowodowała rozprężenie betonu i deformację struktury nośnej. Budynek zawalił się dzień później w godzinach wieczornych, ale na szczęście bez ofiar w ludziach. Na wszelki wypadek rozebrano wówczas bliźniaczy dom, wybudowany już do 6 piętra, gdyż pojawiło się niebezpieczeństwo powtórki z historii.
Seria 1-ЛГ-600 przeznaczona została do dystrybucji na obszarze Leningradu i okolic. Pierwszym poligonem doświadczalnym były leżące nad Zatoką Fińską rejony kirowski i krasnosielski, w których wybudowano niemal wszystkie odmiany tej serii. Budynki postawiono także w rejonach: wyborgskim, kalinińskim, primorskim. Były to tzw. sypialnie Leningradu.
„Statki” do dziś stanowią tu sporą część wielomieszkaniowej zabudowy. Poza granicami Leningradu budynki z tej serii znajdziemy również w pobliskich miejscowościach, jak Krasnoje Sieło (Красное Село), Gorelowo (Горелово) i Kipen (Кипень) oraz w dalszym rejonie ówczesnego Związku Radzieckiego, na granicy koła podbiegunowego, gdzie panują już ekstremalne warunki atmosferyczne - w Nowym Urengoju (Но́вый Уренго́й) na Syberii.
W 1973 r. Centrala Handlu Zagranicznego (Budimex) zawarła kontrakt z radzieckim odpowiednikiem (Technoeksport) na dostawę i montaż pierwszych sześciu budynków wielorodzinnych w wersji 1ЛГ-600А-3 na terenie nieużytków rolnych rozciągających się na północ od dzielnicy Turzyn w Szczecinie. Osiedle otrzymało miano – a jakże! - „Przyjaźni”. Prefabrykaty zostały przetransportowane z Leningradu na Nabrzeże Rumuńskie w Szczecinie statkami Polskiej Żeglugi Morskiej. Prace montażowe w latach 1974-1975 wykonały mieszane polsko-radzieckie zespoły budowlane. Kolejnych 9 domów-statków powstało na Osiedlu Kaliny. Generalnym wykonawcą tej inwestycji było Szczecińskie Przedsiębiorstwo Budownictwa Ogólnego nr 2.
Koszt budowy jednego budynku, obejmujący wszystkie składowe, wynosił 22,5 mln obecnych dolarów. Tymczasem porównywalny polski odpowiednik kosztował 15,5 mln dolarów. Radzieckie plany rozwinięcia tego systemu w Polsce przegrały więc z prostym rachunkiem ekonomicznym. Ostatecznie w latach 70- i 80-tych wzniesiono w Polsce 27 dziewięciokondygnacyjnych budynków serii 1ЛГ-600: w Szczecinie (15), Policach (5), Świnoujściu (4) i Gdańsku (3). Ze względu na miejsce pochodzenia zwano je obiegowo „leningradami”. Nie bez przyczyny też w Policach ulicy, przy której je wybudowano, nadano miano... Leningradzkiej.
![]() |
| A tu ciekawe ujęcie: Najprawdopodobniej ćwierćmaraton policki, Jan Matura, Jerzy Ochota i "leningrady" w tle. |
Polskie „leningrady” w pakiecie otrzymały większość dyskusyjnych przymiotów i problemów charakterystycznych dla tej serii budynków. Niechlujne wykończenie wnętrz, nieszczelna stolarka, hałasujące windy, smród unoszący się z zsypów, przechodnie pokoje to jedne z wielu bolączek trapiących przez lata mieszkańców radzieckich bloków. Z biegiem lat uporano się z częścią z nich, niestety nie obyło się to bez szkody dla ich pierwotnej estetyki. Białą elewację pokryto styropianem i pomalowano na nijakie wzory i kolory. Zepsuto też harmonijną linię przedniej fasady, wstawiając w klatkach schodowych karłowate, zaciemniające wnętrze okna. „Leningrady” straciły urok bijących bielą „statków”.
Mimo liczącej już sobie - w przypadku najstarszych budynków - ponad 40-letniej metryki, „leningrady” nadal są obecne rynku nieruchomości, kusząc zainteresowanych atrakcyjną ceną zakupu. Z biegiem lat wzrasta też ich wartość historyczna i sentymentalna, jako zadziwiającej pamiątki po pozornie sojuszniczej relacji państw bloku socjalistycznego. Ta ostatnia konstatacja może na myśl nasunąć się zwłaszcza wtedy, gdy podczas wymiany okien natrafia się… na radzieckie gazety, pełniące rolę środka uszczelniającego.
Źródła:
- dr Grzegorz Wojtkun, „Osiedla Kaliny i Przyjaźń w Szczecinie – „uniwersalna” wielorodzinna zabudowa mieszkaniowa”, Przestrzeń i Forma, Szczecin 2016.
- rosyjskie serwisy internetowe: domavspb.narod.ru, tipdoma.com, lenproekt.com, ecoton.spb.ru, bn.ru
---
BONUSY
W Kurierze Szczecińskim (nr 93 z 1974 r.) opublikowano korespondencję własną red. Andrzeja Zboronia z wyjazdu do Leningradu, który towarzyszył polskiej delegacji "Budimexu" podczas uzgadniania dostaw elementów prefabrykowanych na jedenasty budynek mieszkalny dla Szczecina. Wizycie towarzyszyła oczywiście serdeczna atmosfera, a sam zakład ДСК-3 zrobił na redaktorze duże wrażenie - pochwalił go za "sprawny przebieg prac i przemyślaną organizację pracy":
A w nr 202 z 1975 r. znajdziemy informację o nowym pawilonie handlowym z widokiem na jeden ze szczecińskich "leningradów". Trzeba przyznać, że architektura tamtych czasów do dziś robi wrażenie:
"Te państwa już nie istnieją, ale ich ślady wciąż można znaleźć na ulicach Szczecina" - pod takim tytułem w 2025 r. serwisie wSzczecinie.pl ukazał się artykuł o jugosłowiańskich kioskach, NRD-owskich biurowcach, czechosłowackich tramwajach i... radzieckich blokach mieszkalnych. Polecam.
---
A oto wspaniała rewia budynków serii 1-ЛГ-600, do której należą pomorskie "leningrady", a które w hurtowych ilościach powstały w ówczesnym Leningradzie i innych miejscowościach Związku Radzieckiego (źródło - Google Maps):
![]() |
| "Leningrad" w klasycznym malowaniu, w wersji 7-klatkowej. Najdłuższa wersja ma 9 klatek. |
![]() |
| "Leningrady" w finezyjnym układzie opartym o kąty rozwarte. Uwagę zwraca wyjątkowo koszmarne malowanie. |
![]() |
| Budynek w wersji łukowej. Rozwiązanie to niwelować miało napór silnych nadbałtyckich wiatrów. |
![]() |
| Bardziej przysadzista odmiana. |
![]() |
| Najbardziej zmodernizowana wizualnie wersja serii 1-ЛГ-600 - 14-piętrowy "wieżowiec". |
![]() |
| 4-piętrowa wersja "wiejska", stawiana w miejscowościach okalających Leningrad. |



















